NOTE AND UPDATE: IN ALL LIKELIHOOD IN RESPONSE TO THIS AND OTHER RELATED BLOG ENTRIES, CRAIG WEIS, ESQ. AND FRANK DECARLO (1) REINSTATED "PIERMONT DEVELOPERS LIMITED LIABILITY COMPANY" FROM A 7-PLUS YEAR FILING DEFAULT, (2) THEREBY SOUGHT TO PURGE JERRY POLIDORO FROM THAT LLC'S RECORD, AND (3) CHANGED THE LLC'S ADDRESS FROM NORWOOD NJ TO HACKENSACK NJ. HOWEVER, AS LAST-KNOWN, JERRY POLIDORO STILL APPEARS ON THE DEED FOR 475 PIERMONT AVENUE IN PIERMONT NEW YORK, AS SHOWN HERE:
You will recall that Gerard M. (Jerry) Polidoro is the last-known on-record Manager, Member, and Owner of "Piermont Developers Limited Liability Company", the New Jersey LLC which the New Jersey Secretary Of State revoked into non-existence for the LLC's failure to file Annual Reports from 2017 through 2024, and the same New Jersey LLC now threatening Piermont, New York with the Ugliest Real Estate Development In The World.
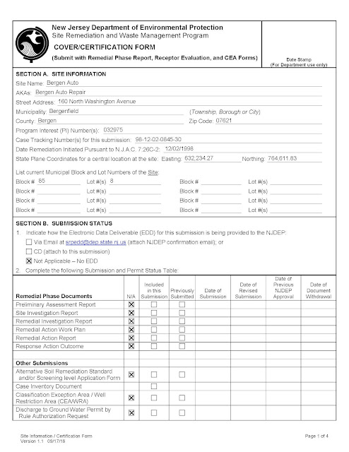
Finding the correct spelling of Jerry Polidoro's name as deduced from that originally-misspelled New Jersey LLC record, led to the discovery that yet another Jerry Polidoro LLC was hammered by the New Jersey Department Of Environmental Protection (NJDEP) in 2015 for failing to clean up the toxic outflow of a former gasoline station with underground gasoline tank storage in Bergenfield, New Jersey - the former Bergen Auto location at 160 North Washington Avenue. The soil and the groundwater there were badly contaminated. You will see below that Jerry is on record as associated with that Bergenfield NJ property as far back as 2003. In 2015 Jerry Polidoro pled poverty to the NJDEP as an "excuse" for not cleaning it up. The NJDEP fined Polidoro Properties, LLC almost US$60,000 and ordered Polidoro Properties, LLC to clean it all up anyway. The real estate appears to have then changed hands in 2017.
Well, guess what? The Borough of Bergenfield, New Jersey just produced OPRA records to me today. Copies of those records are below.
It appears that Jerry Polidoro keeps his business all in the family. (Surprised?).
None other than a "Karen [C.] Mujica Polidoro" is all over these below documents relating to the toxic clean-up of the Bergenfield site in 2015 and its aftermath. And this is the best part. Karen Mujica Polidoro is publicly-identified as a "Licensed Site Remediation Professional" - LSRP #584134 - and a Senior Project Manager for "EnviroTrac Ltd.". That's right. Karen Mujica Polidoro is someone who has handled and apparently still to this day handles toxic clean-ups for a living. She was still trying to help clean up the Bergen Auto property as late as the end of Year 2020. Query whether that is because Jerry was still on the hook for the clean-up wholly five years after the NJDEP nailed his LLC for failure to remediate. I am sure that Jerry will tell us either way.
It is not yet clear how close a contact remains between Jerry Polidoro and his apparent relative by marriage, Karen Mujica Polidoro. Eventually, maybe Jerry will tell us that, too, if he ever actually surfaces and introduces himself to the homeowners and residents of Piermont, New York who would absolutely love to meet him in person.
Yet perhaps a Karen Mujica Polidoro connection is one of the reasons why Jerry Polidoro's Piermont Developers Limited Liability Company is so keen on paving over the property at 447-477 Piermont Avenue in Piermont, New York. After all, it may be difficult to find a property in the Town of Orangetown, New York likely to be much more toxic than 447-477 Piermont Avenue. Piermont used to be a paper mill town. A Sunoco Gasoline Station with underground gasoline tanks used to sit on the site which is now 447-477 Piermont Avenue in Piermont, New York. The recent constant flooding in Piermont spreads all the stuff around. And 447-477 Piermont Avenue has been regularly used as a parking-lot for between 24 to 35 motor vehicles at a time, at least as far back as the 1990s.
It sure sounds like Jerry Polidoro and Piermont Developers Limited Liability Company have all the family help that they need, to try to circumnavigate any and all possible toxicity arising out of the Village of Piermont's development nightmare at 447-477 Piermont Avenue.
The raw documents from the Borough Of Bergenfield, New Jersey OPRA production, follow below. You are welcome to e-mail your further observations about and interpretations of these documents, to:
jtormey@optonline.net






















_Page_1.jpg)
_Page_2.jpg)
_Page_3.jpg)




















